Verteilerkästen Heizung/Wasser
Anwendung:
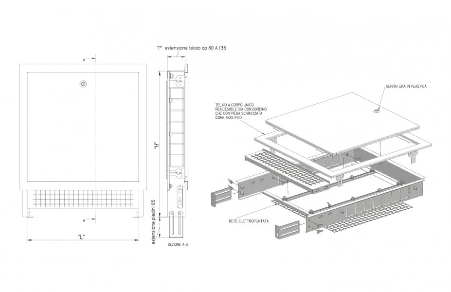
Einbauschrank für Misch- und Verteilergruppen.
Eigenschaften:
Einbaugruppe aus verzinktem Stahl mit Stahlmatte, sichtbare Baugruppe mit einteiligem Rahmen aus verzinktem Stahl, Pulverbeschichtung weiß und Schloss, höhenverstellbar bis 85 mm, breitenverstellbar bis 135 mm, Kunststoff-Wellenplatte zum Schutz der Anlage beim Verputzen.
< zurück zu Divina UNI P80